Fritidshus / sommerhus 88

Velindrettede 88 kvm.

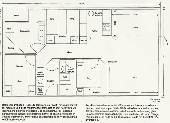
Her er alle moderne faciliteter i et hus, der er udført med mange smukke detaljer og i god gedigen dansk kvalitet. Alle materialer er stort set vedligeholdelsesfrie - det giver dit tid til at nyde tiden i dit Fredsbo Fritidshus.
 
Huset er omkranset af 60 kvm. terrasse, hvoraf 24 kvm. er overdækket.

Se flere huse

88    95

Huset indeholder:

Tre værelser
To badeværelser - det ene med spa og sauna
Køkken-alrum i åben forbindelse med stuen
Bryggers
60 kvm. terrasse - heraf 24 kvm. overdækket
Hwam brændeovn
 
Plantegning
 
Håndværkerfradrag
 
Hustjek